











Второй дом Valterciems
Цена: 83 000 - 192 000 EUR
Площадь: 37,9 - 79,2 m²
Комнат: 2 – 4
В тихой, зеленой части Дрейлини строится новый проект Valterciems. Он получил свое звучное название в честь открытой в 2004 году улицы имени легендарного актера Эвалда Валтерса, которая будет вести к просторному поселку многоквартирных домов. Первый этап, или строительство первого внутреннего квартала на улице Эвалда Валтерcа, включает возведение трех шестиэтажных зданий с 162 квартирами.
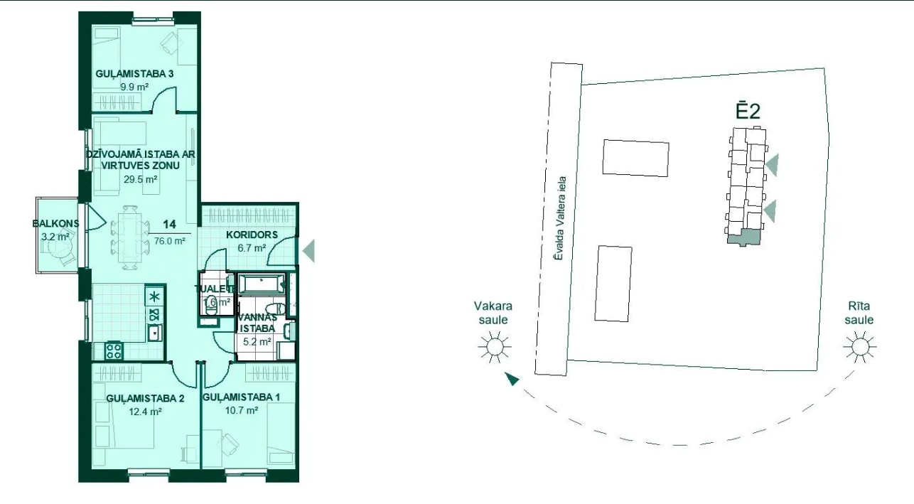
Второй шестиэтажный дом проекта на улице Эвалда Валтерcа 44Б будет состоять из 72 квартир. Продажа и строительство - лето 2025 года, чтобы в конце 2026 года начать передавать ключи новым жильцам. Первый дом будет расположен по адресу: улица Эвалда Валтера, 44А, второй – по улице Эвалда Валтера, 44B, а третий – по улице Эвалда Валтера, 44.
В ходе пяти этапов реализации проекта будут возведены пять благоустроенных и гармонирующих между собой жилых кварталов со множеством пешеходных дорожек, с зелеными внутренними дворами, зонами отдыха, игровыми и спортивными площадками и др. Объединяющим элементом жилого комплекса станет просторная центральная рекреационная площадь. Каждый внутренний квартал спланирован таким образом, чтобы автостоянки находились снаружи, а расположение зданий образовывало свободный внутренний двор для приятного и спокойного отдыха и налаживания добрососедских отношений на детских игровых площадках, а также в зонах спорта и отдыха, оборудованных скамейками и навесами.
Одним из несомненных преимуществ этого поселка для жильцов будет просторная центральная рекреационная территория с многофункциональными спортивными площадками, где можно будет поиграть в пляжный волейбол, баскетбол, а также заняться другими видами активного досуга. Для более спокойного отдыха предусмотрены зоны со столами для пикника, детское игровое оборудование, станция мульти-фитнеса, зона свободных весов и трибуны для проведения собраний жильцов.
В стоимость квартиры будет включена закрываемая личная кладовая для хранения несезонных вещей. Чтобы с удобством добираться до любого этажа, во всех домах предусмотрены лифты; повседневную жизнь семей облегчат и закрываемые колясочные помещения. В каждой квартире будет оборудована индивидуальная вентиляция с рекуперацией, круглосуточно обеспечивающая свежий воздух. На крышах зданий будут установлены солнечные панели, которые уменьшат счета жильцов за электроэнергию.
Продуманную планировку жилищ дополнят балконы подвесного типа или выход в личную зеленую зону (в части квартир на первом этаже). Через террасу с зеленой зоной жильцам будет удобно выходить в благоустроенный внутренний двор. На территории будут сохранены имеющиеся березы и сосны и посажены новые деревья. В проекте предусмотрены не только обычные и оснащенные зарядкой для электромобилей надземные парковки, но и несколько семейных автостоянок, а также стоянки для велосипедов и станции велосервиса. Часть парковочных мест можно будет арендовать. На территории также будут оборудованы стоянка для самокатов общего пользования и зона для каршеринговых транспортных средств. Кроме того, вдоль жилого комплекса будет построена новая улица, соединяющаяся с участком в направлении к улице Бикерниеку.
Обратите внимание, что визуализации предназначены только для информационных целей.
Bonavainfo@bonava.lv+37167567841+37126139951
Pārdošanas nodaļapardosana@bonava.lv+371 27884222+371 28695500











Второй дом Valterciems
Цена: 83 000 - 192 000 EUR
Площадь: 37,9 - 79,2 m²
Комнат: 2 – 4
В тихой, зеленой части Дрейлини строится новый проект Valterciems. Он получил свое звучное название в честь открытой в 2004 году улицы имени легендарного актера Эвалда Валтерса, которая будет вести к просторному поселку многоквартирных домов. Первый этап, или строительство первого внутреннего квартала на улице Эвалда Валтерcа, включает возведение трех шестиэтажных зданий с 162 квартирами.
Второй шестиэтажный дом проекта на улице Эвалда Валтерcа 44Б будет состоять из 72 квартир. Продажа и строительство - лето 2025 года, чтобы в конце 2026 года начать передавать ключи новым жильцам. Первый дом будет расположен по адресу: улица Эвалда Валтера, 44А, второй – по улице Эвалда Валтера, 44B, а третий – по улице Эвалда Валтера, 44.
В ходе пяти этапов реализации проекта будут возведены пять благоустроенных и гармонирующих между собой жилых кварталов со множеством пешеходных дорожек, с зелеными внутренними дворами, зонами отдыха, игровыми и спортивными площадками и др. Объединяющим элементом жилого комплекса станет просторная центральная рекреационная площадь. Каждый внутренний квартал спланирован таким образом, чтобы автостоянки находились снаружи, а расположение зданий образовывало свободный внутренний двор для приятного и спокойного отдыха и налаживания добрососедских отношений на детских игровых площадках, а также в зонах спорта и отдыха, оборудованных скамейками и навесами.
Одним из несомненных преимуществ этого поселка для жильцов будет просторная центральная рекреационная территория с многофункциональными спортивными площадками, где можно будет поиграть в пляжный волейбол, баскетбол, а также заняться другими видами активного досуга. Для более спокойного отдыха предусмотрены зоны со столами для пикника, детское игровое оборудование, станция мульти-фитнеса, зона свободных весов и трибуны для проведения собраний жильцов.
В стоимость квартиры будет включена закрываемая личная кладовая для хранения несезонных вещей. Чтобы с удобством добираться до любого этажа, во всех домах предусмотрены лифты; повседневную жизнь семей облегчат и закрываемые колясочные помещения. В каждой квартире будет оборудована индивидуальная вентиляция с рекуперацией, круглосуточно обеспечивающая свежий воздух. На крышах зданий будут установлены солнечные панели, которые уменьшат счета жильцов за электроэнергию.
Продуманную планировку жилищ дополнят балконы подвесного типа или выход в личную зеленую зону (в части квартир на первом этаже). Через террасу с зеленой зоной жильцам будет удобно выходить в благоустроенный внутренний двор. На территории будут сохранены имеющиеся березы и сосны и посажены новые деревья. В проекте предусмотрены не только обычные и оснащенные зарядкой для электромобилей надземные парковки, но и несколько семейных автостоянок, а также стоянки для велосипедов и станции велосервиса. Часть парковочных мест можно будет арендовать. На территории также будут оборудованы стоянка для самокатов общего пользования и зона для каршеринговых транспортных средств. Кроме того, вдоль жилого комплекса будет построена новая улица, соединяющаяся с участком в направлении к улице Бикерниеку.
Обратите внимание, что визуализации предназначены только для информационных целей.
Bonavainfo@bonava.lv+37167567841+37126139951
Pārdošanas nodaļapardosana@bonava.lv+371 27884222+371 28695500